Ørnumvej 10
4220 Korsør
CVR: 38496190
Fleksibelt indvendigt system til vinduer og skillevægge.
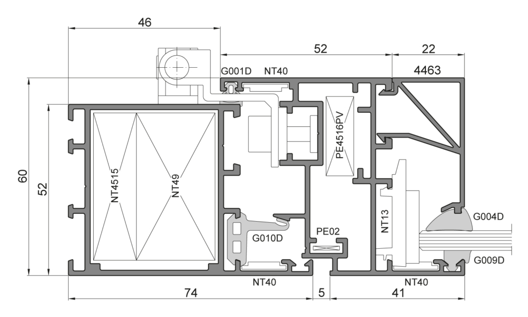
ID 50 systemet er et uisoleret aluminiumsprofilsystem, udviklet til indvendige glaspartier og vindueskonstruktioner. Systemet kombinerer funktionalitet med fleksible designmuligheder, hvilket gør
det velegnet til kontor-, erhvervs- og institutionsbyggeri.
Muligheder
• Indvendige glaspartier
• Vinduer
• Lige og vinklede skillevægge
Systemegenskaber
• Pressede eller skruede samlinger
• Presset ramme med ramme på ydersiden
• Vinduesrammer med PVC-beslagsspor
• Bredt udvalg af tilgængelige beslag
• Kan forbindes med andre ID-systemer
| Specifikationer: | |
|---|---|
| Profildybde: | 52 mm |
| Fyldningstykkelse vindue: | 2 – 43 mm |
| Fyldningstykkelse skillevæg: | 2 – 35 mm |
| Fyldningstyper: | Enkeltglas, termoruder og ikke-gennemsigtige paneler |
| Godkendelser: | |
| Lufttæthed op til: | Klasse 2 |
| Røgbeskyttelse: | SA, S200 |